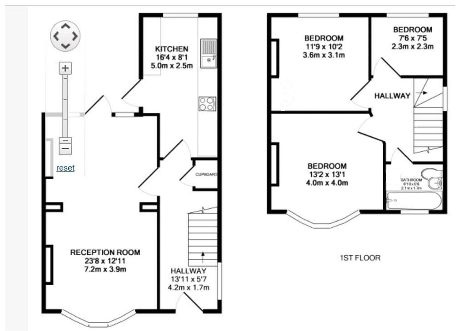
A well presented extended semi-detached home comprising three bedrooms, through reception room, modern fitted kitchen, modern fitted bathroom. Benefits include double glazed windows, central heating, block driveway providing off street parking for two cars and rear garden.
Entrance Hallway - Side aspect double and secondary glazed window, coving, laminate flooring, radiator, understairs storage cupboards.
Reception Room - Front aspect double glazed bay window, radiator, coving, laminate flooring, through to...
Dining Area - Gas fire (currently disconnected) with fireplace surround, rear aspect double glazed window and door to garden.
Kitchen - Modern fitted kitchen with range of wall and base units, single drainer sink with mixer tap, electric hob with oven below and extractor above, integrated dishwasher and washing machine, space for american fridge/freezer, wall mounted combination boiler, laminate flooring, rear aspect double glazed window and door to garden.
Landing - Side aspect double glazed window, access to loft, carpet, doors to...
Bedroom One - Front aspect double glazed bay window, radiator, coving, carpet.
Bedroom Two - Rear aspect double glazed window, radiator, coving, carpet.
Bedroom Three - Rear aspect double glazed window, radiator, coving, carpet.
Bathroom - Modern bathroom comprising panel enclosed bath with mixer tap, shower attachment and shower screen, hand wash basin with vanity unit, low level w.c, tiled walls and flooring, towel rail, radiator, front aspect double glazed window.
Outside -
Front - Block driveway providing off street parking for two cars with side gate leading to rear garden.
Rear Garden - Patio area, rest laid to lawn, timber shed.
Read less