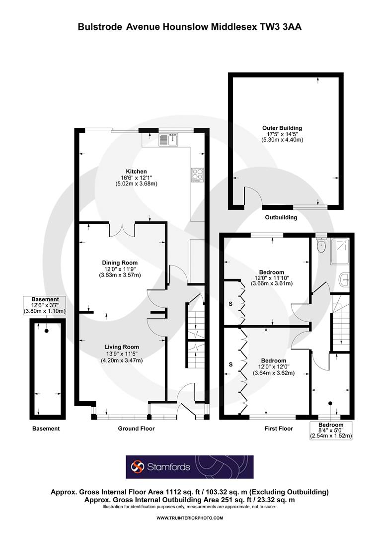
An extended three bedroom mid-terrace family home situated in this popular residential location within a minutes walk from Hounslow Central tube station, Hounslow town centre and further transport links. The accommodation comprises through lounge/diner, extended L'shaped kitchen/breakfast room, on the first floor three bedrooms and re-fitted modern shower room. The property also benefits from double glazed windows, central heating and cellar/basement. Outside the property has a rear garden with a brick built outhouse and own driveway with off street parking.
Entrance Porch - Further door to...
Entrance Hallway - Radiator, stairs to first floor, door to basement/cellar.
L'shaped Extended Kitchen/Breakfast Room - Single drainer stainless steel sink unit with mixer tap and cupboard below, further wall mounted units, built-in hob and oven, space for washing machine and dishwasher, wall mounted boiler, part tiled walls, tiled flooring, rear aspect double glazed window.
Breakfast Area - Tiled flooring, space for fridge/freezer, radiator, sliding patio door to garden.
Through Lounge/Diner - Front aspect double glazed window, radiator, power points, double opening doors to kitchen, further radiator.
First Floor Landing - Access to loft , doors to rooms.
Bedroom One - Front aspect double glazed window, radiator, built-in wall to wall wardrobe, power point.
Bedroom Two - Rear aspect double glazed window, radiator, laminate flooring.
Bedroom Three - Front aspect double glazed window, radiator.
Re-Fitted Modern Shower Room - Tiled enclosed shower cubicle with wall mounted shower unit, wash hand basin with mixer tap and vanity unit below, ow level w.c, tiled walls and flooring, double glazed window, heated towel rail.
Outside -
Rear Garden - Paved patio area, rest laid to lawn area with borders.
Brick Built Outhouse - Double glazed window, power and lighting.
Front - Driveway with off street parking.
Read less