ANOTHER SALE BY STAMFORDS! A rarely available two double bedroom garden flat situated in this popular residential location with minutes walk to Hounslow Central tube station and local shops. Hounslow town centre and other transport links are all nearby. The accommodation comprises reception/diner, modern fitted kitchen, two double bedrooms, modern shower room, separate cloakroom and basement storage area. The property benefits from a private and well maintained rear garden and off street parking for one car, double glazed windows, central heating and the benefit of share of freehold. An internal viewing is strongly recommended to avoid disappointment. Call now for more details.
Communal Entrance - Front door to...
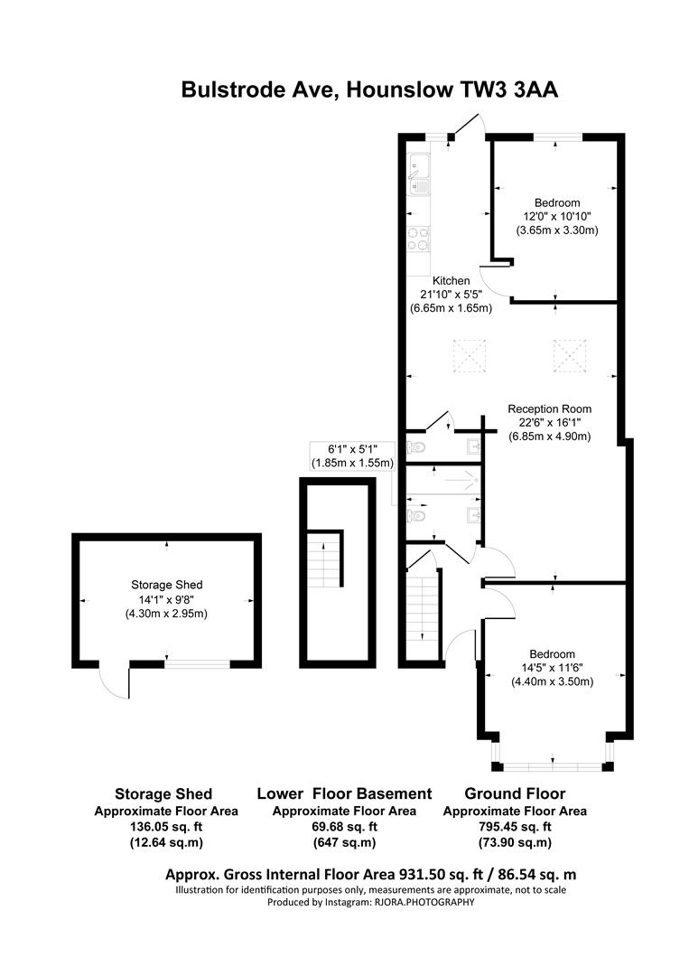
Entrance Hallway - Laminate flooring, access to basement storage area, doors to rooms.
Bedroom One - Front aspect double glazed window, laminate flooring, radiator, coving, power point.
Shower Room - Tiled walls, wall mounted shower unit, low level w.c, wash hand basin.
Reception/Diner - Laminate flooring, power point, radiator, spotlights, through to...
Dining Area - Radiator, power point, laminate flooring, spotlights.
Cloakroom - Low level w/c, wash hand basin with vanity unit below and mixer taps, tiled flooring, tiled walls.
Modern Fitted Kitchen - Single drainer stainless steel sink unit with mixer tap and cupboard below, further wall and floor mounted units, built-in four ring gas hob with oven below and extractor hood above, space for washing machine, wall mounted "Main" combi boiler, part tiled walls, radiator, rear aspect double glazed window and double glazed door to garden.
Bedroom Two - Rear aspect double glazed window, radiator, coving, laminate flooring, spotlights.
Outside -
Private Rear Garden - Decking area with outside lighting and power, feature fish pond, further area with borders and access to ...
Storage Shed/Workshop - Located at the rear of the garden.
Front - Driveway with off street parking.
Read less