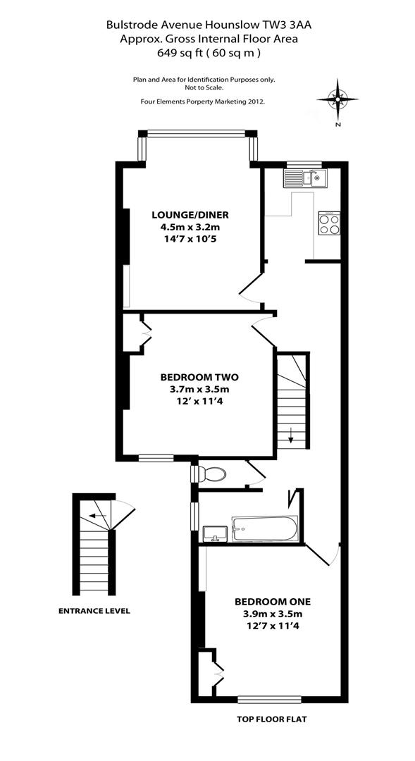
A two double bedroom first floor flat situated in this sought after residential street, conveniently located one minute walk from Hounslow Central tube station and five minutes walk to Hounslow High Street. The accommodation comprises a bright and spacious lounge, two double bedrooms and bathroom with separate w/c. The property benefits from double glazed windows, central heating, rear outside area and off street parking to the front. Offered for sale with no chain!
Read more
A two double bedroom first floor flat situated in this sought after residential street, conveniently located one minute walk from Hounslow Central tube station and five minutes walk to Hounslow High Street. The accommodation comprises a bright and spacious lounge, two double bedrooms and bathroom with separate w/c. The property benefits from double glazed windows, central heating, rear outside area and off street parking to the front. Offered for sale with no chain!
Communal Entrance - Door leading to stairs to the first floor.
Landing - Radiator, airing cupboard housing cylinder tank and shelving, access to loft and doors to rooms.
Lounge - Front aspect double glazed window, radiator, power point, tiled fire surround (not being used), laminate flooring.
Kitchen - 1 1/2 bowl single drainer sink unit with mixer tap and cupboard below, further wall and floor mounted units, built-in hob with oven below, space for washing machine and fridge, tiled walls, wall mounted boiler, front aspect double glazed window.
Bedroom One - Rear aspect double glazed window, radiator, built-in cupboard.
Bedroom Two - Rear aspect double glazed window, radiator, built-in cupboard with storage above.
Bathroom - White suite comprising panel enclosed bath with wall mounted shower unit, pedestal wash hand basin, radiator, part tiled walls, side aspect double glazed frosted window.
Separate W/C - Low level w/c, part tiled walls, double glazed window.
Outside - Side access to an outside area, suitable for a shed or garden, and an off street parking space to the front.
Read less