Ideal Investment, HMO Potential or family home with huge potential to further extend subject to the necessary planning consents. This home is situated in a popular residential location minutes from Hounslow High Street, Hounslow Central, local schools and amenities. Boasting substantial living space (over 1772 sq ft), a rare opportunity has arisen to acquire this three bedroom end terrace family home located close to the Town Centre. On entry the property offers a great feeling of light and space briefly benefiting from driveway parking for up to 5 cars, generous room sizes and a convenient garage/outbuilding (perfect for a home office, workshop or gym). Viewings are highly recommended.
Read more
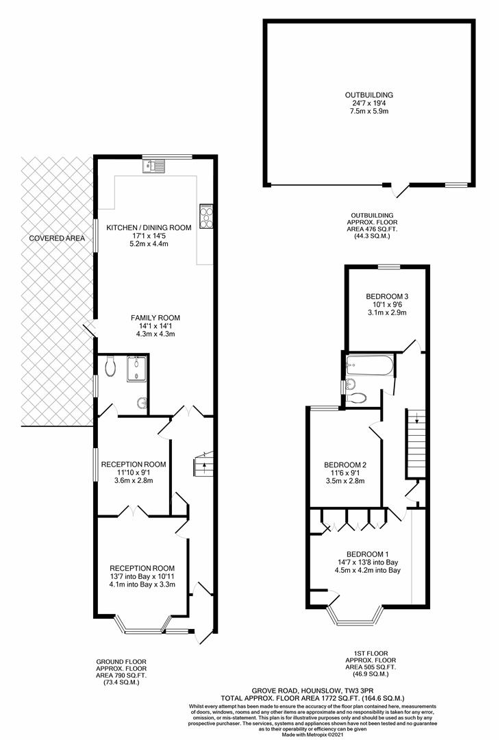
Ideal Investment, HMO Potential or family home with huge potential to further extend subject to the necessary planning consents. This home is situated in a popular residential location minutes from Hounslow High Street, Hounslow Central, local schools and amenities. Boasting substantial living space (over 1772 sq ft), a rare opportunity has arisen to acquire this three bedroom end terrace family home located close to the Town Centre. On entry the property offers a great feeling of light and space briefly benefiting from driveway parking for up to 5 cars, generous room sizes and a convenient garage/outbuilding (perfect for a home office, workshop or gym). Viewings are highly recommended.
Arranged over two floors, the property is full of character with the foundations to make a stunning family home or fantastic investment opportunity. Requiring modernisation and subject to the necessary planning consents, this property would hugely benefit from expansion. The ground floor offers three generous reception rooms, ground floor shower room, spacious kitchen (fitted with a range of fronted wall and floor units with a range of white goods) with side door leading to the back garden. The first floor benefits from three double bedrooms, family bathroom and access to the loft. Please note there is huge potential to further extend the property by means of a wrap around extension and substantial loft conversion STPP.
Outside
Externally, there is a driveway parking (for up to five cars) from the front of the property leading to a garage/outbuilding and a good sized enclosed maintenance free rear garden.
EPC Rating -D
Local Authority - London Borough of Hounslow
Location
Hounslow is a diverse and rapidly growing community with a wide range of eateries, attractions, museums and parks. You will find there's something for everyone, whatever you like doing.
Getting around couldn't be easier. Hounslow has a wealth of transport options and offers easy access to Heathrow Airport, central London and further afield. The property is located in close proximity to Hounslow High Street, providing a huge array of amenities and excellent transport links via Hounslow Overground Stations and Hounslow Central (Piccadilly line to Central London & Heathrow). There are also ample bus links and easy links to the M4.
Local Schools include the Heathland School and Hounslow Heath Junior School both Outstanding rated by OFSTED.
Read less