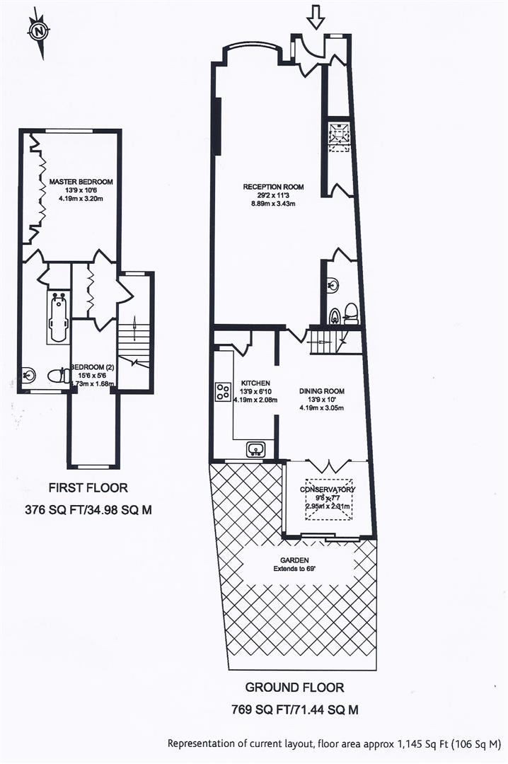
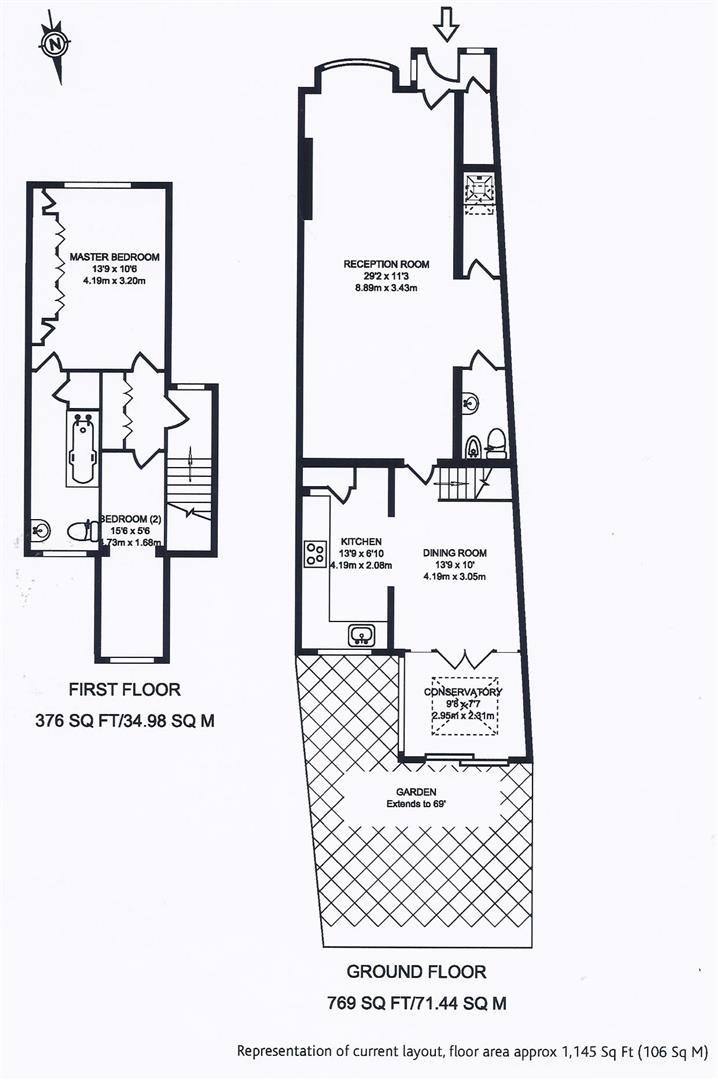
An extended two bedroom end of terrace character property situated in the heart of Hounslow, within walking distance of Hounslow shopping centre, Hounslow Central tube station, schools and other transport links. The accommodation comprises a through lounge/diner, family room, kitchen, conservatory, shower room and cloakroom, on the first floor master bedroom with en-suite bathroom and bedroom two. Outside there is a rear garden and driveway with off street parking. Benefits include double glazed windows and central heating. The property is offered on a furnished basis and is available from 14th December.
Enclosed Entrance Porch - Further door to...
Through Lounge/Diner - Front aspect double glazed window, radiator, feature fireplace (not used) power point, coving, further radiator.
Inner Hallway - Door to...
Shower Room - Tiled enclosed shower cubicle, skylight.
Cloakroom - Low level w.c, pedestal wash hand basin, tiled flooring, part tiled walls, space for washing machine.
Family Room - Stairs to first floor, laminate flooring, radiator, double glazed and double opening doors to conservatory, archway to...
Kitchen - Single drainer stainless steel sink unit with mixer tap and cupboard below, further wall and floor mounted units, built-in hob and oven, part tiled walls, space for fridge/freezer, cupboard housing wall mounted boiler, rear aspect double glazed window.
Conservatory - Laminate flooring, side aspect window, sliding patio door to garden skylight, radiators.
First Floor Landing - Built-in cupboard and doors to rooms.
Bedroom One - Front aspect double glazed window, radiator, power point, built-in wall to wall wardrobes, door to...
En-Suite Bathroom - White suite comprising panel enclosed bath with mixer tap and shower attachment, pedestal wash hand basin, bidet, low level w.c, part tiled walls, radiator, airing cupboard housing cylinder tank and storage, access to loft space, rear aspect double glazed window.
Bedroom Two - Rear aspect double glazed window, radiator, further radiator, power points.
Outside -
Rear Garden - Paved patio area with steps up to laid to lawn area, brick built storage room (in need of attention)
Read less